Beschikbaar

Voorstraat 2

9171 lv, Blije
€ 275.000 ,- k.k.
  • 124 m²
  • 185 m²
  • 4

Omschrijving

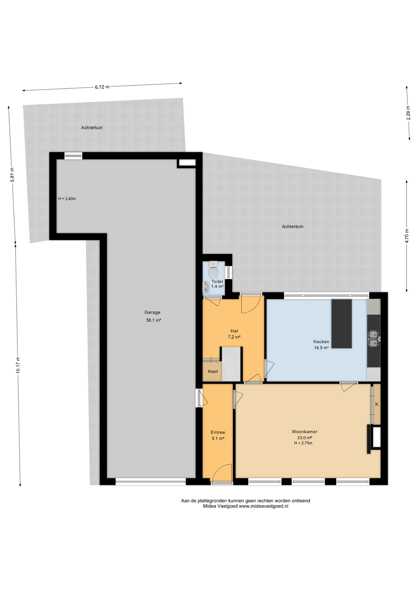
Op zoek naar een kluswoning met veel ruimte en een royale inpandige garage in een karakteristiek dorp vlak bij de Waddenzee? Deze woning in Blije biedt vier slaapkamers, een lichte woonkamer, een ruime woonkeuken, een garage met een lengte van circa 14 meter en een beschutte buitenplaats, allemaal met volop mogelijkheden om naar eigen smaak te moderniseren. Hier woon je op een plek waar potentie, rust en het platteland samenkomen. Indeling: Begane grond: Bij binnenkomst kom je in de hal met meterkast, die toegang geeft tot de woonkamer en de inpandige garage. De woonkamer is licht en beschikt over een rookkanaal en twee praktische vaste kasten, wat zorgt voor extra opbergruimte en mogelijkheden voor een sfeervolle inrichting. De dichte keuken is voorzien van een eenvoudig keukenblok met geiser en een apart werkblad met water- en elektra-aansluiting. Via de tussenhal, waar zich ook de trapopgang naar de eerste verdieping, het heteluchtverwarmingsapparaat en de wateraansluitingen bevinden, bereik je het toilet en de tuin. Vanuit de hal heb je daarnaast toegang tot de…

Op zoek naar een kluswoning met veel ruimte en een royale inpandige garage in een karakteristiek dorp vlak bij de Waddenzee? Deze woning in Blije biedt vier slaapkamers, een lichte woonkamer, een ruime woonkeuken, een garage met een lengte van circa 14 meter en een beschutte buitenplaats, allemaal met volop mogelijkheden om naar eigen smaak te moderniseren. Hier woon je op een plek waar potentie, rust en het platteland samenkomen.

Indeling:

Begane grond:
Bij binnenkomst kom je in de hal met meterkast, die toegang geeft tot de woonkamer en de inpandige garage. De woonkamer is licht en beschikt over een rookkanaal en twee praktische vaste kasten, wat zorgt voor extra opbergruimte en mogelijkheden voor een sfeervolle inrichting. De dichte keuken is voorzien van een eenvoudig keukenblok met geiser en een apart werkblad met water- en elektra-aansluiting. Via de tussenhal, waar zich ook de trapopgang naar de eerste verdieping, het heteluchtverwarmingsapparaat en de wateraansluitingen bevinden, bereik je het toilet en de tuin. Vanuit de hal heb je daarnaast toegang tot de royale inpandige garage met een lengte van ca 14 meter, een betonnen vloer en een elektrisch bedienbare garagedeur; ideaal voor het parkeren van je auto of het creëren van extra hobby-/bergruimte.

1e verdieping:
Via de overloop, die is voorzien van een klein dakraam en praktische vaste kasten, heb je toegang tot maar liefst vier slaapkamers. Twee van de kamers beschikken over een dakkapel, wat zorgt voor extra ruimte en licht, terwijl één slaapkamer een deur heeft naar het platte dak. Alle slaapkamers zijn daarnaast uitgerust met vaste kasten, ideaal voor het opbergen van kleding en spullen. De badkamer is compleet ingericht met een toilet, wastafelmeubel, inloopdouche en een elektrische kachel.

Buitenruimte:
Achter de woning vind je een beschutte buitenplaats, gelegen op het noorden, waar je in alle rust kunt genieten van de buitenlucht. Dankzij de beschutte ligging is het hier een fijne plek om te ontspannen, bijvoorbeeld met een kop koffie in de ochtend of een gezellige zitplek om tot rust te komen na een lange dag.

Bijzonderheden:
– energielabel G;
– heteluchtverwarming, Brink 1972;
– royale inpandige garage;
– gelegen in het karakteristieke centrum van het dorp Blije, nabij de Waddenzee.

Deze informatie is door ons met de nodige zorgvuldigheid samengesteld. Onzerzijds wordt echter geen enkele aansprakelijkheid aanvaard voor enige onvolledigheid, onjuistheid of anderszins, dan wel de gevolgen daarvan. Alle opgegeven maten en oppervlakten zijn indicatief.

Toelichtingsclausule NEN2580:
De Meetinstructie is gebaseerd op de NEN2580. De Meetinstructie is bedoeld om een meer eenduidige manier van meten toe te passen voor het geven van een indicatie van de gebruiksoppervlakte. De Meetinstructie sluit verschillen in meetuitkomsten niet volledig uit, door bijvoorbeeld interpretatieverschillen, afrondingen of beperkingen bij het uitvoeren van de meting.

Toon meerLees minder
Kenmerken
  • Status Beschikbaar
  • Vraagprijs € 275.000 ,- k.k.
  • Aanvaarding In overleg
  • Aangeboden sinds 2026-03-13
  • Soort woonhuis Woonhuis
  • Woonoppervlakte 124 m2
  • Totaal aantal kamers 7
  • Aantal slaapkamers 4
  • Aantal badkamers 1
  • Badkamer voorzieningen Toilet, wastafelmeubel, inloopdouche
  • Inhoud 708 m3
  • Oppervlakte gebouwgebonden buitenruimte 8 m2
  • Perceel oppervlakte 185 m2
  • Bouwvorm Bestaande bouw
  • Dak type Zadeldak
  • Woonlagen 2
  • Eigendoms soort Volle eigendom
  • Huidige bestemming Woonruimte
  • Huidig gebruik Woonruimte
  • Bijzonderheden Kluswoning
  • Bouwjaar 1930
  • Energielabel G
  • Ligging In centrum
  • Kwaliteit woning Matig tot redelijk
  • Hoofd tuin locatie Noord
  • Hoofd tuin oppervlakte 36 m2
  • Hoofd tuin type Plaats
  • Tuin type Plaats
  • Kwaliteit tuin Normaal
  • Isolatievormen Gedeeltelijk dubbel glas
  • Verwarmingsoorten Hete lucht verwarming
  • Warmwater soorten Geiser eigendom
  • Voorzieningen Rookkanaal, dakraam
  • Garage soort Inpandig
  • Parkeerfaciliteiten Openbaar parkeren
Toon meer Lees minder
Video

Eerlijk advies van een betrokken makelaar?

Als met bouwkundige achtergrond kijk ik graag kritisch met u mee. Zo kunt u ‘gewoon’ naar uw gevoel luisteren.  

Maak een afspraak
De omgeving

In de buurt

      Bieden

      Online een bieding doen? Vul het formulier in en u hoort zo snel mogelijk van ons.

      Doe een bod
      Afspraak maken - Makelaar Stiens
      Meer weten over deze woning?

      Ik vertel u er graag alles over!

      We gebruiken cookies om uw website-ervaring te personaliseren.