Omschrijving
Op zoek naar een woning met veel buitenruimte, karakter en volop mogelijkheden om naar eigen smaak te moderniseren? Deze vrijstaande woning biedt dat én meer! De woning is gelegen op een royaal perceel van 1255 m2 en beschikt over een diepe, zonnige tuin op het zuidoosten, een vrije ligging en een grote inpandige schuur. In de tuin vind je bovendien een mooie tuinkas, ideaal voor het kweken van groenten, kruiden of bloemen. Hier geniet je van rust, privacy en vrijheid, terwijl voorzieningen en uitvalswegen toch dichtbij zijn. Indeling: Begane grond: Via de entree betreed je de woning met toegang tot de woonkamer, keuken, slaapkamer, kelder en de trap naar de eerste verdieping. De woonkamer is voorzien van een gaskachel en biedt een prettige leefruimte met uitzicht op de tuin. De slaapkamer op de begane grond beschikt over een wastafel en een sfeervolle schouw. De keuken is uitgerust met een oven, gaskookplaat en afzuigkap en biedt directe toegang tot de inpandige schuur. In de naastgelegen hal vind je de witgoedaansluitingen, evenals…
Op zoek naar een woning met veel buitenruimte, karakter en volop mogelijkheden om naar eigen smaak te moderniseren? Deze vrijstaande woning biedt dat én meer! De woning is gelegen op een royaal perceel van 1255 m2 en beschikt over een diepe, zonnige tuin op het zuidoosten, een vrije ligging en een grote inpandige schuur. In de tuin vind je bovendien een mooie tuinkas, ideaal voor het kweken van groenten, kruiden of bloemen. Hier geniet je van rust, privacy en vrijheid, terwijl voorzieningen en uitvalswegen toch dichtbij zijn.
Indeling:
Begane grond:
Via de entree betreed je de woning met toegang tot de woonkamer, keuken, slaapkamer, kelder en de trap naar de eerste verdieping.
De woonkamer is voorzien van een gaskachel en biedt een prettige leefruimte met uitzicht op de tuin. De slaapkamer op de begane grond beschikt over een wastafel en een sfeervolle schouw. De keuken is uitgerust met een oven, gaskookplaat en afzuigkap en biedt directe toegang tot de inpandige schuur. In de naastgelegen hal vind je de witgoedaansluitingen, evenals het toilet met fonteintje én de badkamer, voorzien van een elektrische kachel, douche en wastafel. De grote schuur met elektra en dubbele openslaande deuren, is ideaal voor hobby’s of opslag.
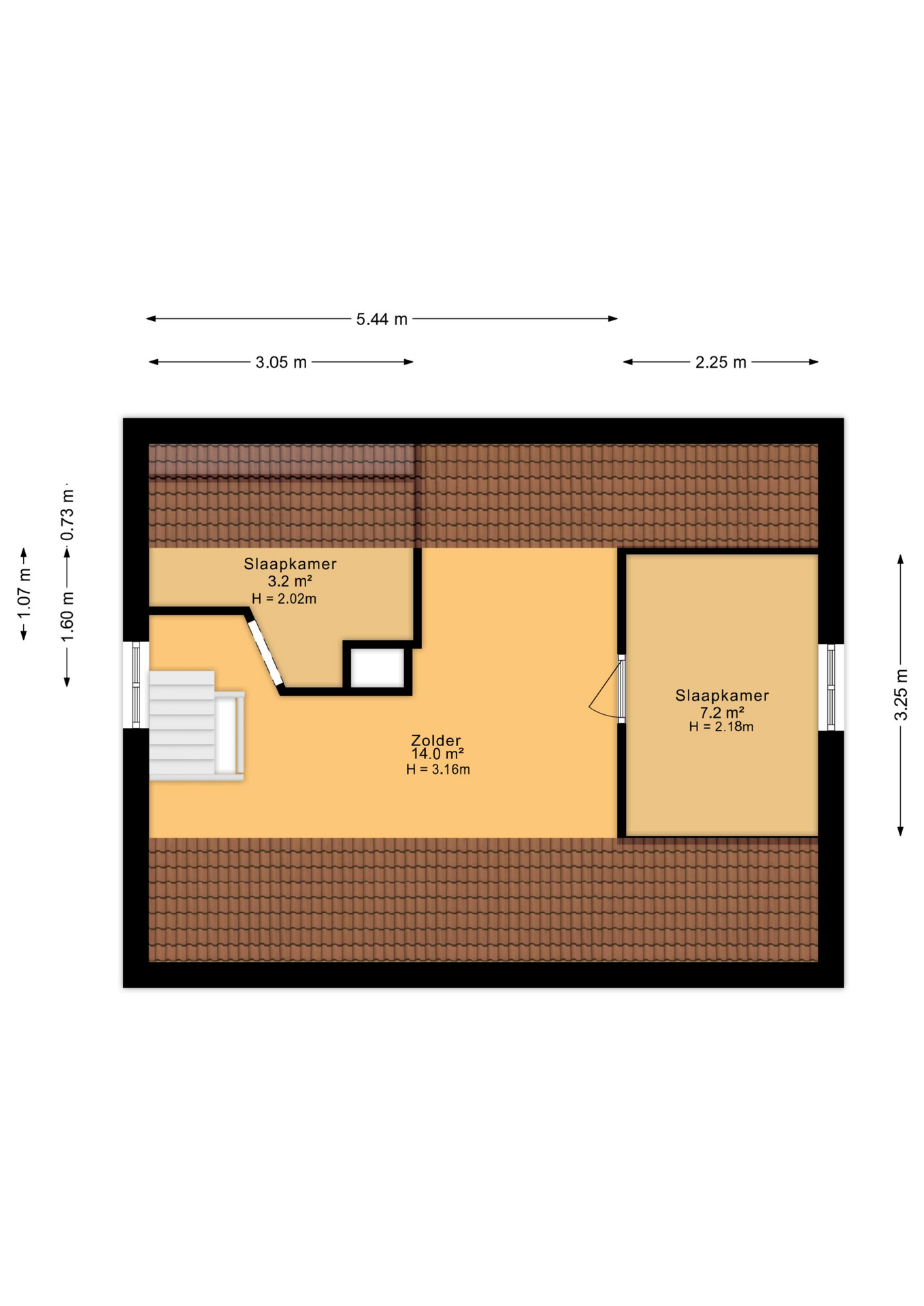
Eerste verdieping:
De overloop met veel extra bergruimte biedt toegang tot de twee slaapkamers. Deze verdieping is naar eigen inzicht ook anders in te delen.
Buitenruimte:
De woning is omgeven door een ruime, diepe tuin met volop mogelijkheden om geheel naar eigen wens in te richten. Een tuinkas is reeds aanwezig, perfect voor de liefhebber van tuinieren!
Bijzonderheden:
– energielabel G;
– verwarming via gaskachels;
– warmwatervoorziening: geiser Vaillant, 2008;
– diep tuin met vrij uitzicht aan de achterzijde;
– garage en schuur met elektra;
– perceeloppervlakte 1255 m2.
Omgeving:
Marrum ligt omgeven door weidse Friese landerijen en biedt een harmonieuze woonomgeving waar rust en gemak samenkomen. Je woont hier op loopafstand van essentiële basisvoorzieningen zoals winkels en scholen, terwijl de grotere dorpen en steden goed te bereiken zijn door middel van openbaar vervoer (bushaltes) of met de auto via de uitvalsweg (N357).
Deze informatie is door ons met de nodige zorgvuldigheid samengesteld. Onzerzijds wordt echter geen enkele aansprakelijkheid aanvaard voor enige onvolledigheid, onjuistheid of anderszins, dan wel de gevolgen daarvan. Alle opgegeven maten en oppervlakten zijn indicatief.
Toelichtingsclausule NEN2580:
De Meetinstructie is gebaseerd op de NEN2580. De Meetinstructie is bedoeld om een meer eenduidige manier van meten toe te passen voor het geven van een indicatie van de gebruiksoppervlakte. De Meetinstructie sluit verschillen in meetuitkomsten niet volledig uit, door bijvoorbeeld interpretatieverschillen, afrondingen of beperkingen bij het uitvoeren van de meting.
Kenmerken
- Status Beschikbaar
- Vraagprijs € 350.000 ,- k.k.
- Aanvaarding In overleg
- Aangeboden sinds 2025-10-13
- Soort woonhuis Woonhuis
- Woonoppervlakte 88 m2
- Totaal aantal kamers 5
- Aantal slaapkamers 3
- Aantal badkamers 1
- Badkamer voorzieningen Douche, wastafel
- Inhoud 409 m3
- Perceel oppervlakte 1.255 m2
- Bouwvorm Bestaande bouw
- Dak type Zadeldak
- Woonlagen 2
- Eigendoms soort Volle eigendom
- Huidige bestemming Woonruimte
- Huidig gebruik Woonruimte
- Bouwjaar 1920
- Energielabel G
- Ligging In woonwijk, vrij uitzicht
- Kwaliteit woning Redelijk tot goed
- Hoofd tuin locatie Zuidoost
- Hoofd tuin oppervlakte 897 m2
- Hoofd tuin type Achtertuin
- Tuin type Achtertuin, voortuin, zijtuin
- Kwaliteit tuin Normaal
- Schuur / berging soort Inpandig
- Oppervlakte bergruimte 7 m2
- Verwarmingsoorten Gaskachels
- Warmwater soorten Geiser eigendom
- Garage soort Geen garage
- Parkeerfaciliteiten Op eigen terrein
Video

Eerlijk advies van een betrokken makelaar?
Als met bouwkundige achtergrond kijk ik graag kritisch met u mee. Zo kunt u ‘gewoon’ naar uw gevoel luisteren.
Maak een afspraakDe omgeving
In de buurt
Bieden
Online een bieding doen? Vul het formulier in en u hoort zo snel mogelijk van ons.
Doe een bod