Omschrijving
Deze knusse geschakelde woning ligt op een unieke locatie in het sfeervolle centrum van Stiens, verscholen tussen het karakteristieke steegje “de Galge” en de straat “It Achterbosk”. Hier woon je op een rustige plek met een authentieke uitstraling, terwijl alle voorzieningen op loopafstand zijn. De woning is toe aan een grondige opknapbeurt, maar biedt volop potentie. Dit is dé kans om jouw eigen droomplek te creëren, geheel naar eigen wens en stijl. Indeling: Begane grond: Entree, binnenkomst in de keuken met compact keukenblok, doorloop naar de woonkamer met balkenplafond, authentieke vaste kasten en sfeervolle schouw met gashaard. Slaapkamer met aangrenzend een badkamer met douche en wastafel en een apart toilet. Eerste verdieping: Vliering. Buitenruimte: Tuin aan de voorzijde met mogelijkheid voor een heerlijk zithoekje. Je hebt hier vrij uitzicht in de straat "It Achterbosk". Bijzonderheden: - energielabel G; - gaskachels; - de aangebouwde garage maakt geen onderdeel uit van het geheel; - perceeloppervlakte 134 m2; - er zal een "As is, where is" clausule worden opgenomen in de koopovereenkomst. Omgeving:…
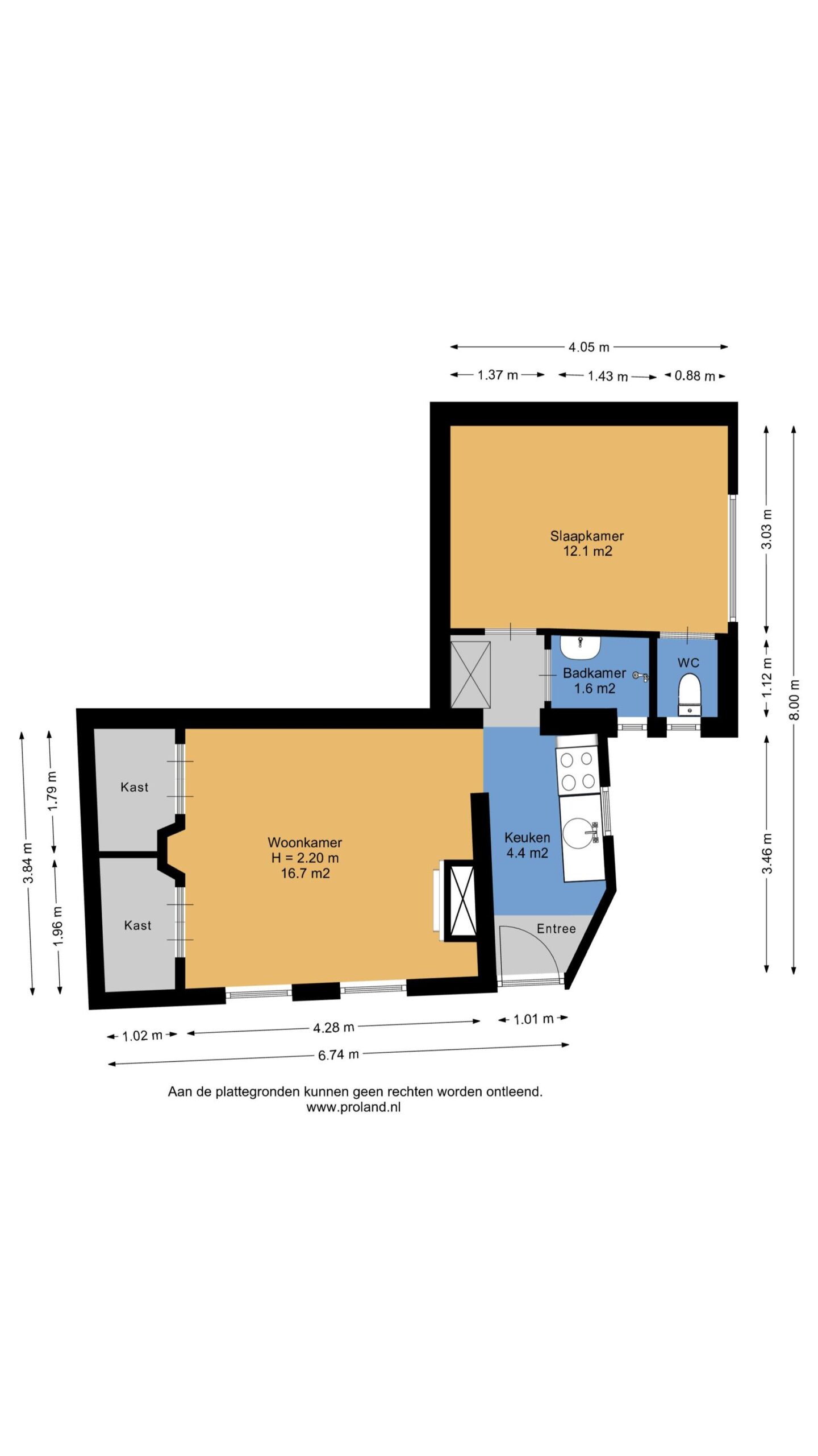
Deze knusse geschakelde woning ligt op een unieke locatie in het sfeervolle centrum van Stiens, verscholen tussen het karakteristieke steegje “de Galge” en de straat “It Achterbosk”. Hier woon je op een rustige plek met een authentieke uitstraling, terwijl alle voorzieningen op loopafstand zijn. De woning is toe aan een grondige opknapbeurt, maar biedt volop potentie. Dit is dé kans om jouw eigen droomplek te creëren, geheel naar eigen wens en stijl.
Indeling:
Begane grond:
Entree, binnenkomst in de keuken met compact keukenblok, doorloop naar de woonkamer met balkenplafond, authentieke vaste kasten en sfeervolle schouw met gashaard. Slaapkamer met aangrenzend een badkamer met douche en wastafel en een apart toilet.
Eerste verdieping:
Vliering.
Buitenruimte:
Tuin aan de voorzijde met mogelijkheid voor een heerlijk zithoekje. Je hebt hier vrij uitzicht in de straat “It Achterbosk”.
Bijzonderheden:
– energielabel G;
– gaskachels;
– de aangebouwde garage maakt geen onderdeel uit van het geheel;
– perceeloppervlakte 134 m2;
– er zal een “As is, where is” clausule worden opgenomen in de koopovereenkomst.
Omgeving:
Stiens ademt het warme gemeenschapsgevoel. De nabijheid van diverse supermarkten maken het dagelijkse leven comfortabel en praktisch. Het levendige centrum biedt een scala aan winkels voor je dagelijkse benodigdheden en leuke hebbedingen. De buurt straalt rust uit, weg van de hectiek van de stad, maar nog steeds dichtbij alle voorzieningen.
Bereikbaarheid:
Stiens is makkelijk bereikbaar. Via het fietspad over de oude spoorlijn ben je zo in het bruisende Leeuwarden. Ook is de bereikbaarheid goed met het openbaar vervoer (bushaltes) en de belangrijke uitvalswegen (N357) zijn makkelijk bereikbaar.
Deze informatie is door ons met de nodige zorgvuldigheid samengesteld. Onzerzijds wordt echter geen enkele aansprakelijkheid aanvaard voor enige onvolledigheid, onjuistheid of anderszins, dan wel de gevolgen daarvan. Alle opgegeven maten en oppervlakten zijn indicatief.
Toelichtingsclausule NEN2580:
De Meetinstructie is gebaseerd op de NEN2580. De Meetinstructie is bedoeld om een meer eenduidige manier van meten toe te passen voor het geven van een indicatie van de gebruiksoppervlakte. De Meetinstructie sluit verschillen in meetuitkomsten niet volledig uit, door bijvoorbeeld interpretatieverschillen, afrondingen of beperkingen bij het uitvoeren van de meting.
Kenmerken
- Status Verkocht
- Vraagprijs € 139.500 ,- k.k.
- Aanvaarding In overleg
- Aangeboden sinds 2025-05-21
- Soort woonhuis Woonhuis
- Woonoppervlakte 44 m2
- Totaal aantal kamers 2
- Aantal slaapkamers 1
- Aantal badkamers 1
- Badkamer voorzieningen Douche, wastafel
- Inhoud 166 m3
- Perceel oppervlakte 134 m2
- Bouwvorm Bestaande bouw
- Dak type Zadeldak
- Woonlagen 2
- Eigendoms soort Volle eigendom
- Huidige bestemming Woonruimte
- Huidig gebruik Woonruimte
- Bouwjaar 1800
- Energielabel G
- Ligging In centrum
- Kwaliteit woning Redelijk
- Hoofd tuin locatie Zuidoost
- Hoofd tuin oppervlakte 44 m2
- Hoofd tuin type Voortuin
- Tuin type Voortuin, zijtuin
- Kwaliteit tuin Normaal
- Verwarmingsoorten Gaskachels
- Warmwater soorten Geiser huur
- Garage soort Geen garage
- Parkeerfaciliteiten Openbaar parkeren

Eerlijk advies van een betrokken makelaar?
Als met bouwkundige achtergrond kijk ik graag kritisch met u mee. Zo kunt u ‘gewoon’ naar uw gevoel luisteren.
Maak een afspraak