Omschrijving
Modern afgewerkte hoekwoning op royaal perceel in groene woonwijk! In de populaire en ruim opgezette wijk d’Orient staat deze modern afgewerkte hoekwoning op een riant perceel van 234 m² eigen grond. De woning is recent gemoderniseerd en beschikt over een strakke keuken (2023) en een stijlvolle badkamer (2024). Dankzij de gunstige hoekligging profiteer je van extra lichtinval, veel privacy en een prachtig vrij uitzicht over het groene plantsoen met vijverpartij. Een ideale gezinswoning die comfort, ruimte en een rustige, natuurrijke woonomgeving perfect combineert! Indeling: Begane grond: Via de entree bereik je een ruime hal met toegang tot het moderne toilet, een handige trapkast en de trap naar de eerste verdieping. De royale woonkamer van circa 42 m² straalt licht en ruimte uit en biedt een fijne scheiding tussen het zit- en eetgedeelte. Aan de achterzijde bevindt zich de moderne open keuken in praktische opstelling, compleet met diverse inbouwapparatuur. Aangrenzend vind je een geïsoleerde werkkamer/hobbyruimte van circa 11 m², perfect als thuiswerkplek, speelkamer of hobbyruimte, met tevens de aansluitingen voor de…
Modern afgewerkte hoekwoning op royaal perceel in groene woonwijk! In de populaire en ruim opgezette wijk d’Orient staat deze modern afgewerkte hoekwoning op een riant perceel van 234 m² eigen grond. De woning is recent gemoderniseerd en beschikt over een strakke keuken (2023) en een stijlvolle badkamer (2024). Dankzij de gunstige hoekligging profiteer je van extra lichtinval, veel privacy en een prachtig vrij uitzicht over het groene plantsoen met vijverpartij. Een ideale gezinswoning die comfort, ruimte en een rustige, natuurrijke woonomgeving perfect combineert!
Indeling:
Begane grond:
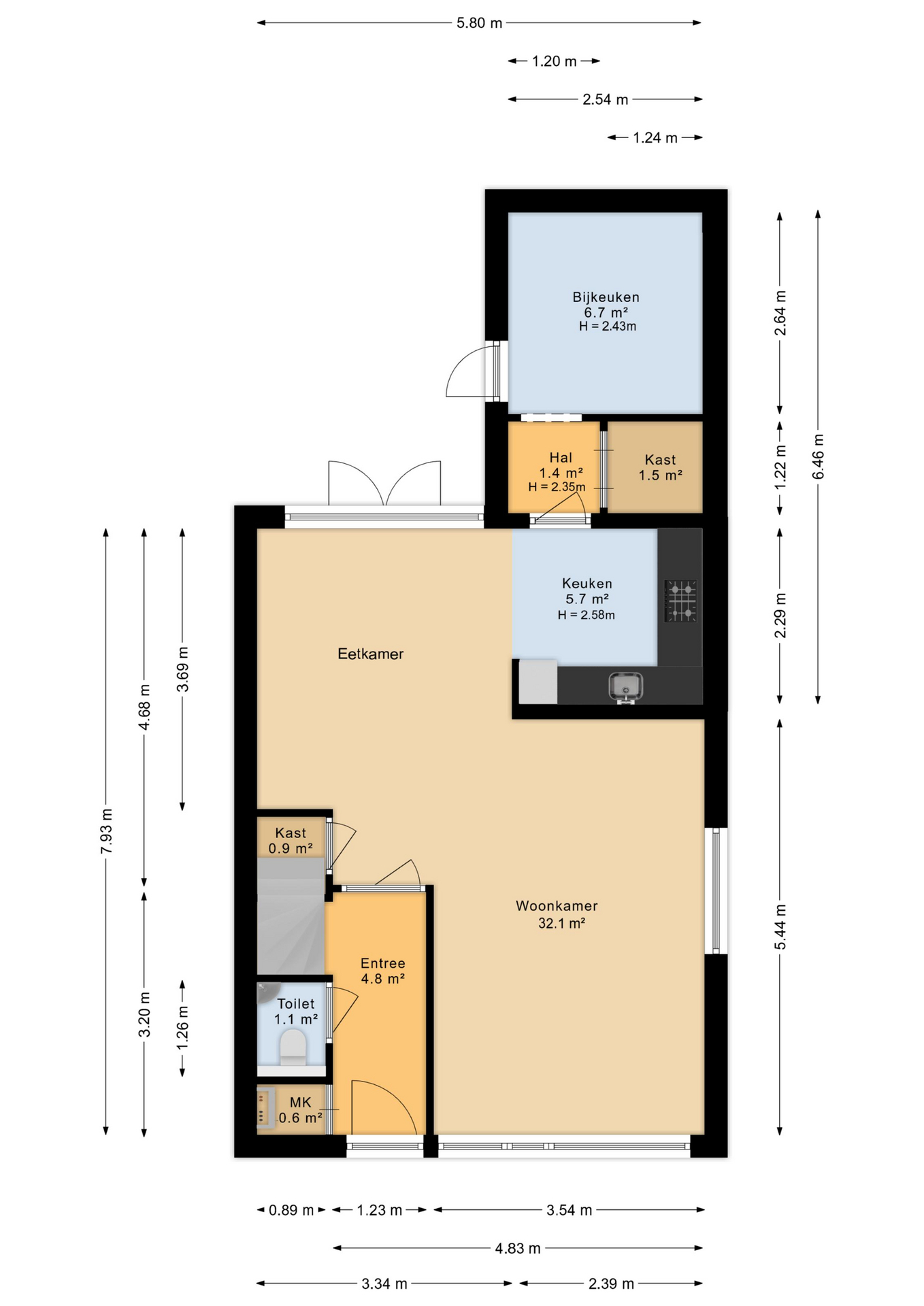
Via de entree bereik je een ruime hal met toegang tot het moderne toilet, een handige trapkast en de trap naar de eerste verdieping. De royale woonkamer van circa 42 m² straalt licht en ruimte uit en biedt een fijne scheiding tussen het zit- en eetgedeelte. Aan de achterzijde bevindt zich de moderne open keuken in praktische opstelling, compleet met diverse inbouwapparatuur. Aangrenzend vind je een geïsoleerde werkkamer/hobbyruimte van circa 11 m², perfect als thuiswerkplek, speelkamer of hobbyruimte, met tevens de aansluitingen voor de wasmachine en directe toegang tot de achtertuin.
Eerste verdieping:
Op de eerste verdieping biedt de overloop toegang tot drie slaapkamers van circa 9 m², 10 m² en 11 m², alle voorzien van een nette laminaatvloer en volop daglicht. Daarnaast is er een handige vaste kast voor extra bergruimte. De moderne badkamer is compact maar volledig uitgerust met een ligbad, douchecabine, stijlvol wastafelmeubel en een designradiator – een heerlijke plek om de dag ontspannen te beginnen of af te sluiten.
Tweede verdieping:
Via een vlizotrap bereik je de ruime zolderberging met dakraam, een ideale plek voor het netjes opbergen van seizoensspullen, koffers, sportuitrusting en andere items die je niet dagelijks gebruikt. Dankzij de royale afmetingen biedt deze verdieping volop praktische bergruimte en blijft de rest van de woning heerlijk opgeruimd.
Buitenruimte:
De woning beschikt over een verzorgde voor-, zij- en achtertuin, waarbij de achtertuin met een diepte van circa 11 meter en een breedte van circa 10 meter bijzonder royaal is en dankzij de ligging op het zuidoosten de hele dag van de zon geniet. In de tuin staat een houten berging, ideaal voor extra opslag. Aan de voorzijde biedt een ruime oprit plek voor meerdere auto’s op eigen terrein, wat het geheel compleet en uiterst praktisch maakt.
Bijzonderheden:
– vrije ligging in de wijk d’Orient;
– basisscholen, zwembad en sportvoorzieningen in de directe nabijheid aanwezig;
– tuindeuren 2011;
– keuken 2023;
– laminaatvloeren 2023:
– badkamer 2024;
– cv-ketel, eigendom 2011;
– toilet 2011;
– eigen grond: 234 m².
Omgeving:
Stiens ademt het warme gemeenschapsgevoel. De nabijheid van diverse supermarkten maken het dagelijkse leven comfortabel en praktisch. Het levendige centrum biedt een scala aan winkels voor je dagelijkse benodigdheden en leuke hebbedingen. De buurt straalt rust uit, weg van de hectiek van de stad, maar nog steeds dichtbij alle voorzieningen.
Bereikbaarheid:
Stiens is makkelijk bereikbaar. Via het fietspad over de oude spoorlijn ben je zo in het bruisende Leeuwarden. Ook is de bereikbaarheid goed met het openbaar vervoer (bushaltes) en de belangrijke uitvalswegen (N357) zijn makkelijk bereikbaar.
Deze informatie is door ons met de nodige zorgvuldigheid samengesteld. Onzerzijds wordt echter geen enkele aansprakelijkheid aanvaard voor enige onvolledigheid, onjuistheid of anderszins, dan wel de gevolgen daarvan. Alle opgegeven maten en oppervlakten zijn indicatief.
Toelichtingsclausule NEN2580:
De Meetinstructie is gebaseerd op de NEN2580. De Meetinstructie is bedoeld om een meer eenduidige manier van meten toe te passen voor het geven van een indicatie van de gebruiksoppervlakte. De Meetinstructie sluit verschillen in meetuitkomsten niet volledig uit, door bijvoorbeeld interpretatieverschillen, afrondingen of beperkingen bij het uitvoeren van de meting.
Kenmerken
- Status Beschikbaar
- Array € 339.500 ,- k.k.
- Aanvaarding In overleg
- Aangeboden sinds 2025-10-21
- Soort woonhuis Woonhuis
- Woonoppervlakte 98 m2
- Totaal aantal kamers 5
- Aantal slaapkamers 3
- Aantal badkamers 1
- Badkamer voorzieningen Ligbad, douche, wastafelmeubel
- Inhoud 372 m3
- Perceel oppervlakte 296 m2
- Bouwvorm Bestaande bouw
- Dak type Zadeldak
- Woonlagen 3
- Eigendoms soort Volle eigendom, volle eigendom, mandelig
- Huidige bestemming Woonruimte
- Huidig gebruik Woonruimte
- Bouwjaar 1977
- Energielabel C
- Ligging Aan park
- Kwaliteit woning Goed
- Hoofd tuin locatie Oost
- Hoofd tuin oppervlakte 95 m2
- Hoofd tuin type Achtertuin
- Tuin oppervlakte 95 m2
- Tuin type Achtertuin, voortuin
- Kwaliteit tuin Normaal
- Schuur / berging soort Vrijstaand hout
- Oppervlakte bergruimte 7 m2
- Isolatievormen Dakisolatie, muurisolatie, hr glas
- Combiketel Ja
- Ketel bouwjaar 2011
- Ketel brandstof Gas
- Ketel eigendom Eigendom
- Verwarmingsoorten Cv ketel
- Warmwater soorten Cv ketel
- Voorzieningen Tv kabel, dakraam, glasvezel kabel, natuurlijke ventilatie
- Garage soort Geen garage
- Parkeerfaciliteiten Openbaar parkeren
Video

Eerlijk advies van een betrokken makelaar?
Als met bouwkundige achtergrond kijk ik graag kritisch met u mee. Zo kunt u ‘gewoon’ naar uw gevoel luisteren.
Maak een afspraakDe omgeving
In de buurt
Bieden
Online een bieding doen? Vul het formulier in en u hoort zo snel mogelijk van ons.
Doe een bod