Omschrijving
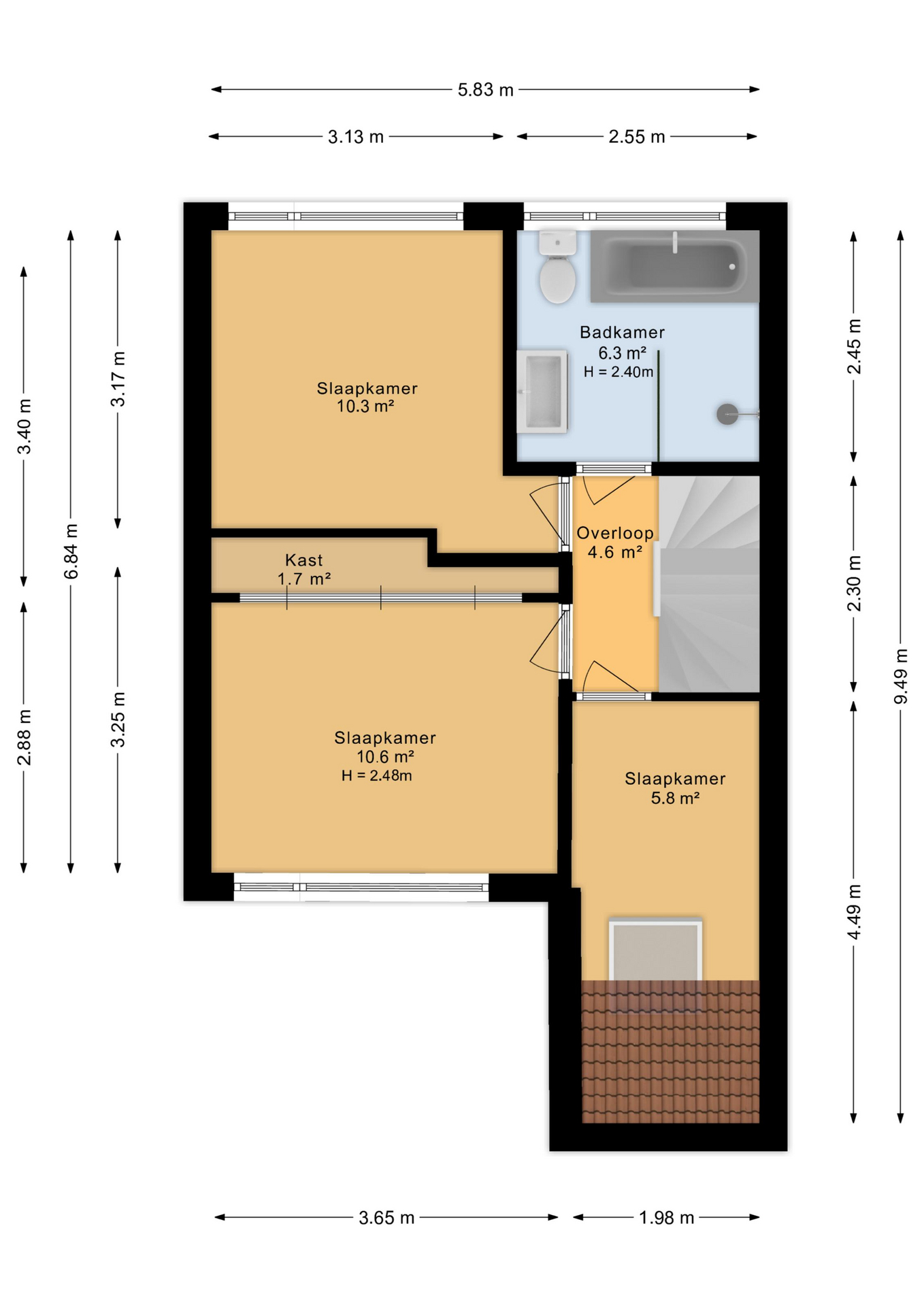
Op zoek naar een instapklare, energiezuinige woning met veel ruimte en comfort? Deze verrassend ruime eengezinswoning met energielabel A, moderne afwerking én een zonnige tuin heeft alles in huis voor jarenlang woongenot. Met vijf slaapkamers, een complete badkamer, een halfopen keuken en volop bergruimte is dit de ideale plek voor gezinnen of thuiswerkers. Dankzij de zonnepanelen, isolatie en kunststof kozijnen is de woning bovendien helemaal klaar voor de toekomst. Indeling: Begane grond: Via de entreehal met meterkast en de omvormer voor de zonnepanelen komt u in de woning. Hier bevindt zich ook een modern toiletruimte met hangend toilet en fonteintje. De lichte woonkamer is voorzien van een fraaie houten vloer en beschikt over een praktische trapkast. Aan de achterzijde vind je de eetkamer en halfopen keuken met plavuizen vloer en diverse inbouwapparatuur, waaronder: een 4-pits gasfornuis, afzuigkap, quooker kraan, koelkast en vaatwasser. Vanuit de bijkeuken, met de witgoedaansluitingen heb je toegang tot de berging en de tuin. Eerste verdieping: De overloop geeft toegang tot drie slaapkamers. Eén slaapkamer is voorzien…
Op zoek naar een instapklare, energiezuinige woning met veel ruimte en comfort? Deze verrassend ruime eengezinswoning met energielabel A, moderne afwerking én een zonnige tuin heeft alles in huis voor jarenlang woongenot. Met vijf slaapkamers, een complete badkamer, een halfopen keuken en volop bergruimte is dit de ideale plek voor gezinnen of thuiswerkers. Dankzij de zonnepanelen, isolatie en kunststof kozijnen is de woning bovendien helemaal klaar voor de toekomst.
Indeling:
Begane grond:
Via de entreehal met meterkast en de omvormer voor de zonnepanelen komt u in de woning. Hier bevindt zich ook een modern toiletruimte met hangend toilet en fonteintje. De lichte woonkamer is voorzien van een fraaie houten vloer en beschikt over een praktische trapkast. Aan de achterzijde vind je de eetkamer en halfopen keuken met plavuizen vloer en diverse inbouwapparatuur, waaronder: een 4-pits gasfornuis, afzuigkap, quooker kraan, koelkast en vaatwasser. Vanuit de bijkeuken, met de witgoedaansluitingen heb je toegang tot de berging en de tuin.
Eerste verdieping:
De overloop geeft toegang tot drie slaapkamers. Eén slaapkamer is voorzien van een dakraam, een andere beschikt over een vaste kastenwand en een draaikiepraam met hor. De derde slaapkamer heeft eveneens een draaikiepraam met hor. De badkamer is compleet uitgerust met een ligbad, inloopdouche, wastafelmeubel, designradiator, vloerverwarming, staand toilet en spotverlichting. Het gestucte plafond en draaikiepraam maken het geheel af.
Tweede verdieping:
Op de tweede verdieping treft u een overloop met dakkapel, bergruimte en de cv-installatie. Verder zijn er twee kamers, een slaapkamer met dakraam en praktische bergruimte achter het knieschot en een tweede kamer die uitstekend te gebruiken is als slaapkamer of werkkamer, voorzien van een dakkapel met draaikiepraam en hor.
Buitenruimte:
De achtertuin is verzorgd aangelegd en is voorzien van sierbestrating, spotverlichting, een terras, een buitenkraan en elektra. Via de achterom bereikt u de houten schuur met overkapping die voorzien is van elektra. De tuin met terras en schuur grenst aan een groot grasveld van de gemeente, perfect voor kinderen of extra buitenruimte.
Bijzonderheden:
– energielabel A;
– cv-ketel Remeha 2020;
– 8 zonnepanelen op het zuiden 2023;
– spouwmuurisolatie 2023;
– kruipruimte-isolatie, EPS-parels 2023;
– dakkapel kunststof met HR++ glas 2022;
– kunststof kozijnen met HR++ glas ca. 2004;
– berging kunststof deur en kozijn met HR++ glas 2010;
– badkamer vernieuwd 2011 en keuken 2009;
– tuin aangelegd 2010, terras vernieuwd 2023;
– voor- en achterzijde buitenkraan aanwezig;
– dakisolatie aan de binnenzijde
Omgeving:
Stiens ademt het warme gemeenschapsgevoel. De nabijheid van diverse supermarkten maken het dagelijkse leven comfortabel en praktisch. Het levendige centrum biedt een scala aan winkels voor je dagelijkse benodigdheden en leuke hebbedingen. De buurt straalt rust uit, weg van de hectiek van de stad, maar nog steeds dichtbij alle voorzieningen.
Bereikbaarheid:
Stiens is makkelijk bereikbaar. Via het fietspad over de oude spoorlijn ben je zo in het bruisende Leeuwarden. Ook is de bereikbaarheid goed met het openbaar vervoer (bushaltes) en de belangrijke uitvalswegen (N357) zijn makkelijk bereikbaar.
Deze informatie is door ons met de nodige zorgvuldigheid samengesteld. Onzerzijds wordt echter geen enkele aansprakelijkheid aanvaard voor enige onvolledigheid, onjuistheid of anderszins, dan wel de gevolgen daarvan. Alle opgegeven maten en oppervlakten zijn indicatief.
Toelichtingsclausule NEN2580:
De Meetinstructie is gebaseerd op de NEN2580. De Meetinstructie is bedoeld om een meer eenduidige manier van meten toe te passen voor het geven van een indicatie van de gebruiksoppervlakte. De Meetinstructie sluit verschillen in meetuitkomsten niet volledig uit, door bijvoorbeeld interpretatieverschillen, afrondingen of beperkingen bij het uitvoeren van de meting.
Kenmerken
- Status Onder bod
- Vraagprijs € 298.500 ,- k.k.
- Aanvaarding In overleg
- Aangeboden sinds 2025-09-26
- Soort woonhuis Woonhuis
- Woonoppervlakte 116 m2
- Totaal aantal kamers 7
- Aantal slaapkamers 5
- Aantal badkamers 1
- Badkamer voorzieningen Ligbad, toilet, wastafelmeubel, inloopdouche
- Inhoud 439 m3
- Oppervlakte gebouwgebonden buitenruimte 6 m2
- Perceel oppervlakte 170 m2
- Bouwvorm Bestaande bouw
- Dak type Samengesteld dak
- Woonlagen 3
- Eigendoms soort Volle eigendom
- Huidige bestemming Woonruimte
- Huidig gebruik Woonruimte
- Bouwjaar 1974
- Energielabel A
- Ligging Aan rustige weg, in woonwijk
- Kwaliteit woning Goed
- Hoofd tuin locatie Noordoost
- Hoofd tuin oppervlakte 81 m2
- Hoofd tuin type Achtertuin
- Tuin type Achtertuin, voortuin
- Kwaliteit tuin Verzorgd
- Schuur / berging soort Aangebouwd steen
- Isolatievormen Dakisolatie, muurisolatie, vloerisolatie
- Combiketel Ja
- Ketel bouwjaar 2020
- Ketel brandstof Gas
- Ketel eigendom Eigendom
- Verwarmingsoorten Cv ketel
- Warmwater soorten Cv ketel
- Voorzieningen Dakraam, zonnepanelen
- Garage soort Geen garage
- Parkeerfaciliteiten Openbaar parkeren
Video

Eerlijk advies van een betrokken makelaar?
Als met bouwkundige achtergrond kijk ik graag kritisch met u mee. Zo kunt u ‘gewoon’ naar uw gevoel luisteren.
Maak een afspraakDe omgeving
In de buurt
Bieden
Online een bieding doen? Vul het formulier in en u hoort zo snel mogelijk van ons.
Doe een bod